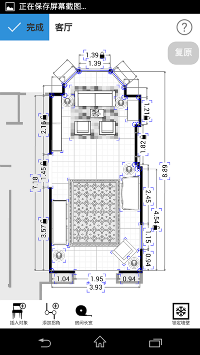
MagicPlan 室內設計平面圖軟體 – 用手機也能勾勒出房型比例圖

搬新家想重新裝潢手邊卻沒有房子的平面圖比例嗎? 您可以試試「MagicPlan」,它能透過手機的照相機功能,將您房間內的平面圖勾勒出來,完全不費功夫就能得到您房子的完整平面圖,真的很適合手邊沒有專業工具的朋友使用。

magicplan_000

MagicPlan for Android:下載點

magicplan_aqr

MagicPlan for iOS:下載點

magicplan_iqr

 

MagicPlan 室內設計平面圖軟體 - 用手機也能勾勒出房型比例圖

magicplan_002

magicplan_003

magicplan_004

magicplan_005